• Work
  • ARCHIPELAGO DANANG
  • ARCHIPELAGO
  • PIXEL
  • LIVING VILLAGE
Contact
An Le
  • Work
  • ARCHIPELAGO DANANG
  • ARCHIPELAGO
  • PIXEL
  • LIVING VILLAGE
Contact

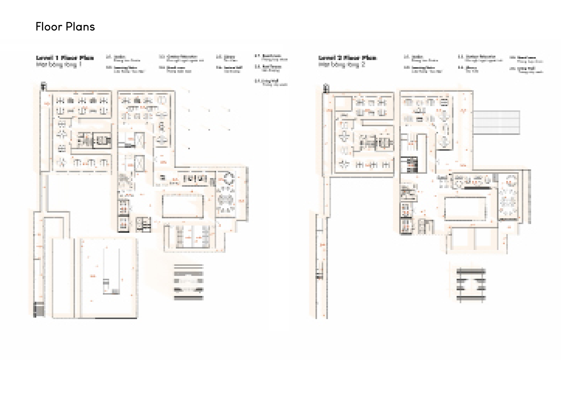
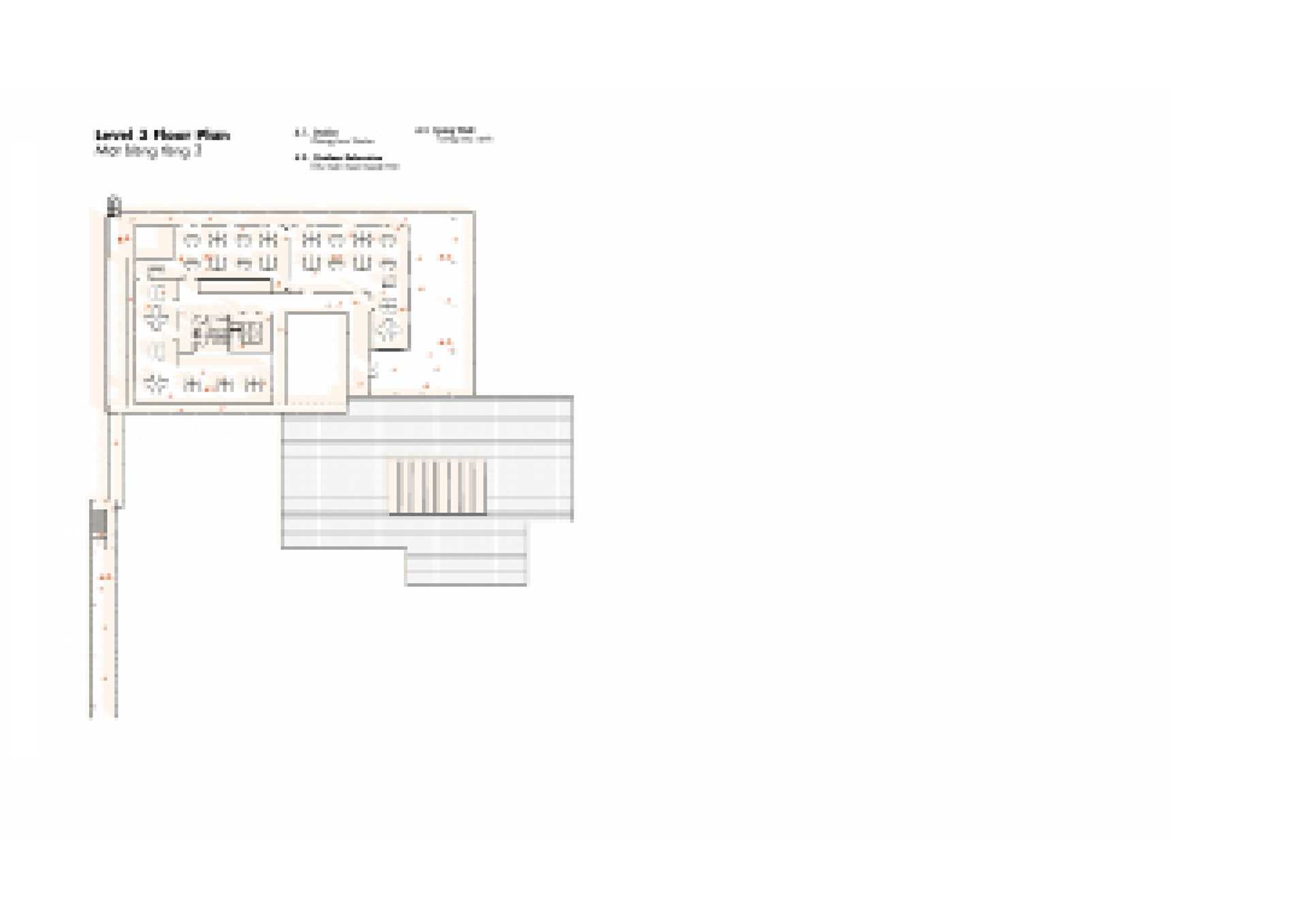
ARCHIPELAGO DANANG

↑Back to Top
Powered by Adobe Portfolio